- Home
- Massarosa
- Vendita
- Casa villa
- Case indipendenti
- Rif. VIL101
€ 460.000
Massarosa
Dati immobile
Descrizione immobile
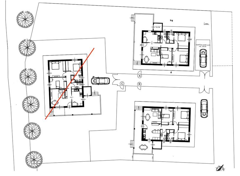
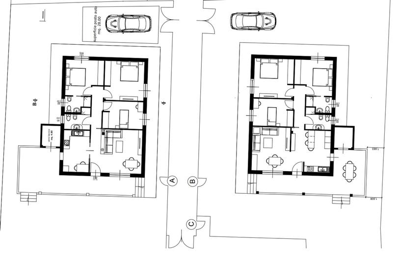
N° 2 villette singole in fase di edificazione. Gli immobili vengono sviluppati interamente al piano terra. Un caso prevede che l'immobile sia composto da: ingresso-soggiorno, cucina abitabile, disimpegno, due camere, cameretta e doppi servizi. A corredo della casa porticato, ampio giardino esclusivo e posto auto. Per chi desidera una prima casa di nuova costruzione e realizzata secondo i più moderni standard può essere una valida soluzione.
Contattaci

Invio messaggio in corso...

Invio messaggio in corso...